one cotroceni park

Un Reper al Regenerării Urbane în Vestul Bucureștiului

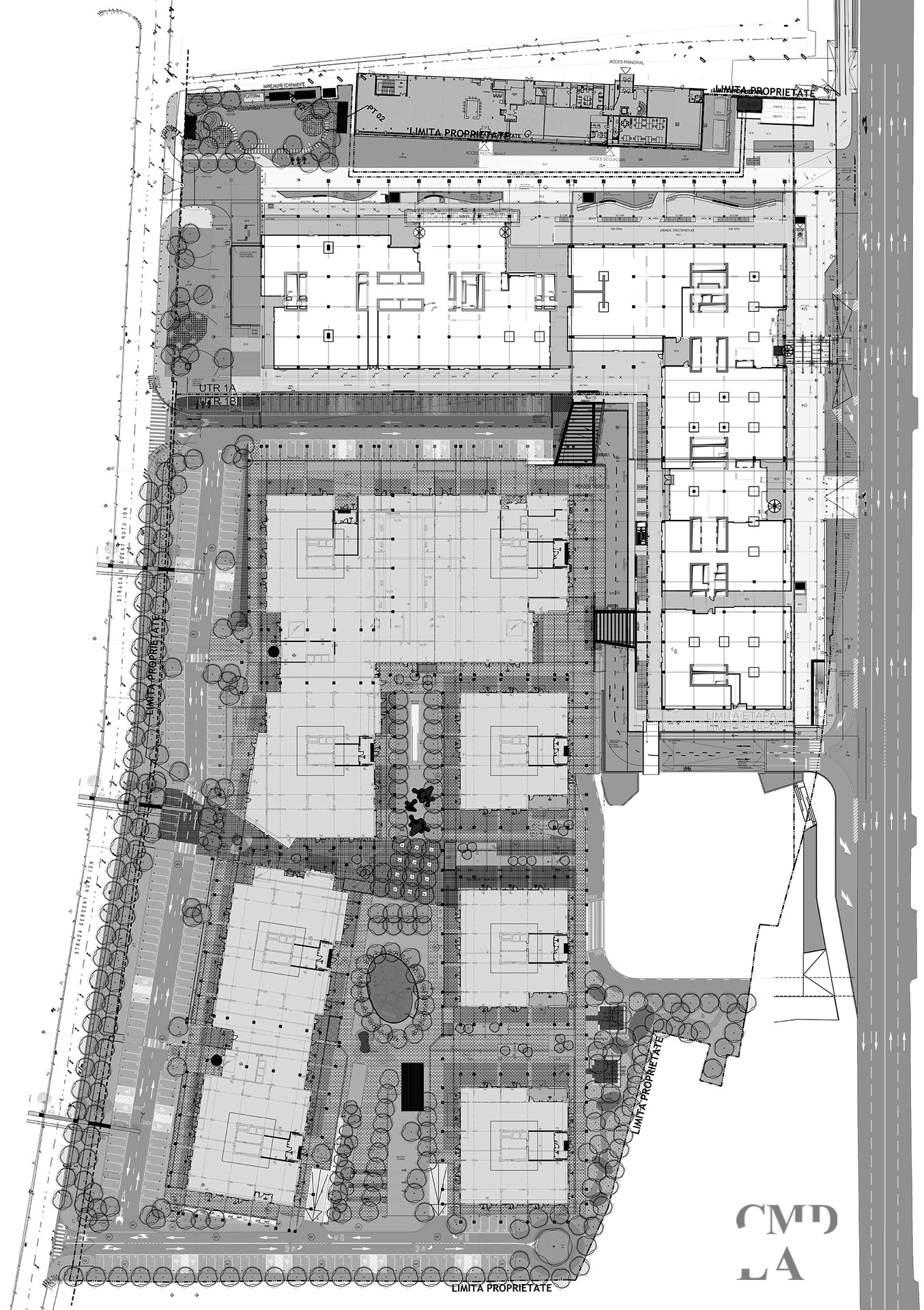
One Cotroceni Park, dezvoltat de One United Properties, este un proiect emblematic de regenerare urbană situat în partea de vest a Bucureștiului. Cu o abordare mixtă — rezidențial, comercial și birouri — dezvoltarea transformă un fost sit industrial într-o destinație vibrantă și multifuncțională. CMD/LA, în colaborare cu X Architecture & Engineering, a semnat conceptul de arhitectură peisageră pentru spațiile publice exterioare.

Arhitectura: X Architecture & Engineering Consult

Landscape Architecture: CMD/LA

peis Cosmin Coman, arh Ramona Coman, peis Iasmina Petre

Beneficiar: One United Properties

Scările

Scările de acces către piațetă sunt realizate din plăci ceramice, cu contratrepte din tablă neagră. Acestea sunt integrate armonios în spațiile verzi adiacente, modelând subtil relieful. O rampă dedicată persoanelor cu dizabilități și cărucioarelor se desfășoară paralel cu accesul subteran.

minor plaza

Această zonă funcționează ca un element de legătură între Piațeta Centrală, locul de joacă pentru copii și intrarea sudică. Este amenajată cu mobilier urban personalizat, un deck din lemn și un sistem de pulverizare fină a apei, pentru un plus de confort în sezonul cald.

Locul de joaca

Locul de joacă pentru copii, cu formă eliptică, este ușor adâncit — situat la 30 cm sub nivelul piețetelor înconjurătoare. Accesul se face prin scări și o rampă dedicată. Suprafața este realizată din tartan moale, iar pereții de sprijin sunt placați cu piatră naturală.

central plaza

Ca principal punct de convergență, Piața Centrală leagă Piața Tăcerii de Piața Mică. Este un spațiu deschis, pavat cu cuburi din piatră naturală, animat de stejari roșii care formează o adevărată pădure urbană. Iluminatul ambiental și mobilierul urban completează atmosfera, într-un loc gândit pentru a susține cel mai intens flux pietonal din întregul ansamblu.

scuarul tăcerii

Concepută ca un spațiu de liniște și reflecție, scuarul tăcerii include un bazin metalic cu apă care se revarsă discret peste pietriș, formând o perdea de apă curgătoare ce creează o ambianță calmă și meditativă.

Grădina

Cea mai liniștită zonă din One Cotroceni Park, Grădina oferă două spații ample pentru socializare, amplasate sub pergole metalice placate cu HPL. Băncile din lemn lamelar și deckurile din lemn sunt înconjurate de ierburi ornamentale luxuriante, o alee sinuoasă și arbori de umbră, creând un refugiu senin în mijlocul peisajului urban regenerat.